方案展示
設計說明
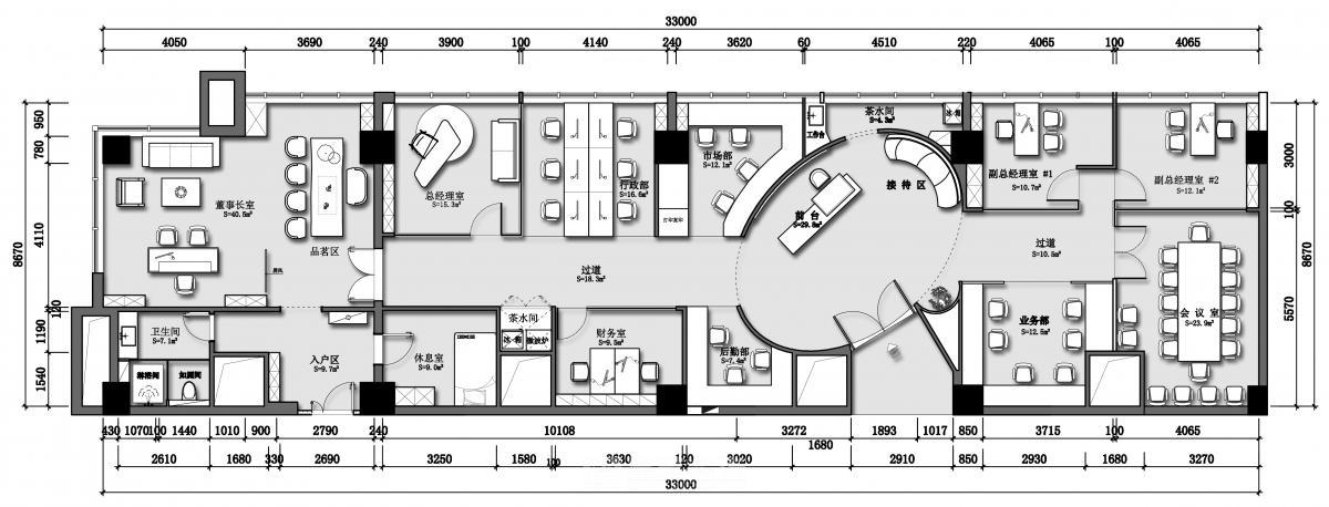
規整的體塊從來不缺少,思緒回歸空間,弧形的走線淡化固有形式的緊張感,為空間平添趣味感,穩重之余微顯灑脫柔美、謙和之余挑露個性與活力。
[展開]-
星藝設計師的其它設計案例
-
現代風格的其它設計案例
關注我們
分享到
微信

立即預約
在線咨詢
在線客服
公安部備案號 44010602004978號